
南鴻裝飾6月全體設計師會議精彩來襲!
“端午臨中夏,時清日復長。”馬上又是一年一度的端午節了,小鴻在這里先預祝大家端午安康,萬事順心,最重要的是,小長假玩的開心!

接下來,一起來看看南鴻裝飾6月全體設計師會議上的精彩內容吧~

? MVP作品
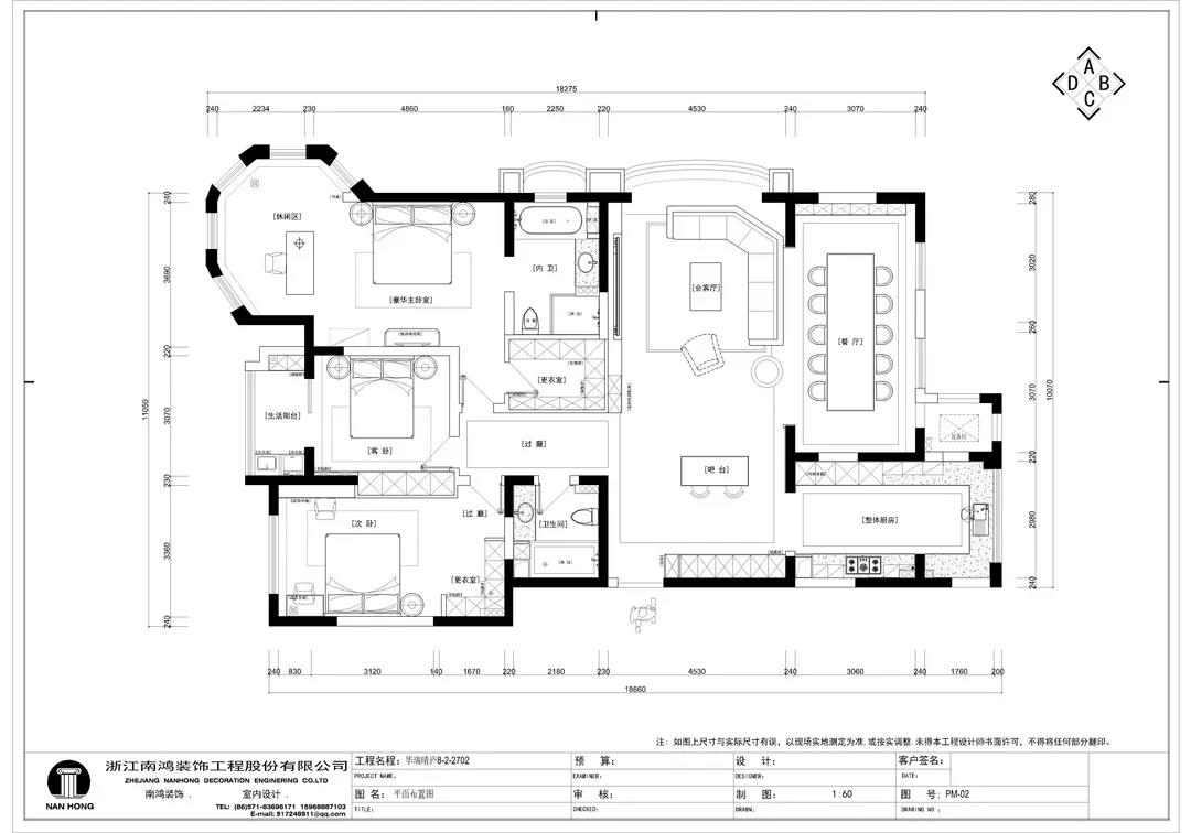
城西分部王金 / 華瑞晴廬

本次PK賽的最佳作品,是來自我們城西分部王金老師的華瑞晴廬,王老師還為他的作品起了一個非常貼切的名字——“紅與黑”。
戶型圖一覽▼


?平面設計圖
華瑞晴廬本身是200方的大平層戶型,但廚、衛、餐、臥房都偏小,因此設計師將空間進行整合規劃,盡量放大客餐廚公區域面積,滿足客戶的日常交際需求。
現場施工▼

實景欣賞▼





色彩上主要依照男主人的喜好,選擇了深色的石材與木飾面,點綴上深紅色的軟裝元素,整體搭配不會太過沉悶,再結合柔和的燈光用以打造空間氛圍感,完美詮釋“紅與黑”主題!
設計一部徐姮 / 上河宸章

徐姮老師的上河宸章是套200方新中式風格的花園洋房戶型。在這所大居室中,一家人其樂融融,閑有可棲,暢享現代藝術的氣質和氛圍,領略古老而神秘的傳統文明,這大概就是新中式的獨特魅力吧。
實景欣賞▼



△客廳沙發背景墻

△臥室


△古韻悠揚
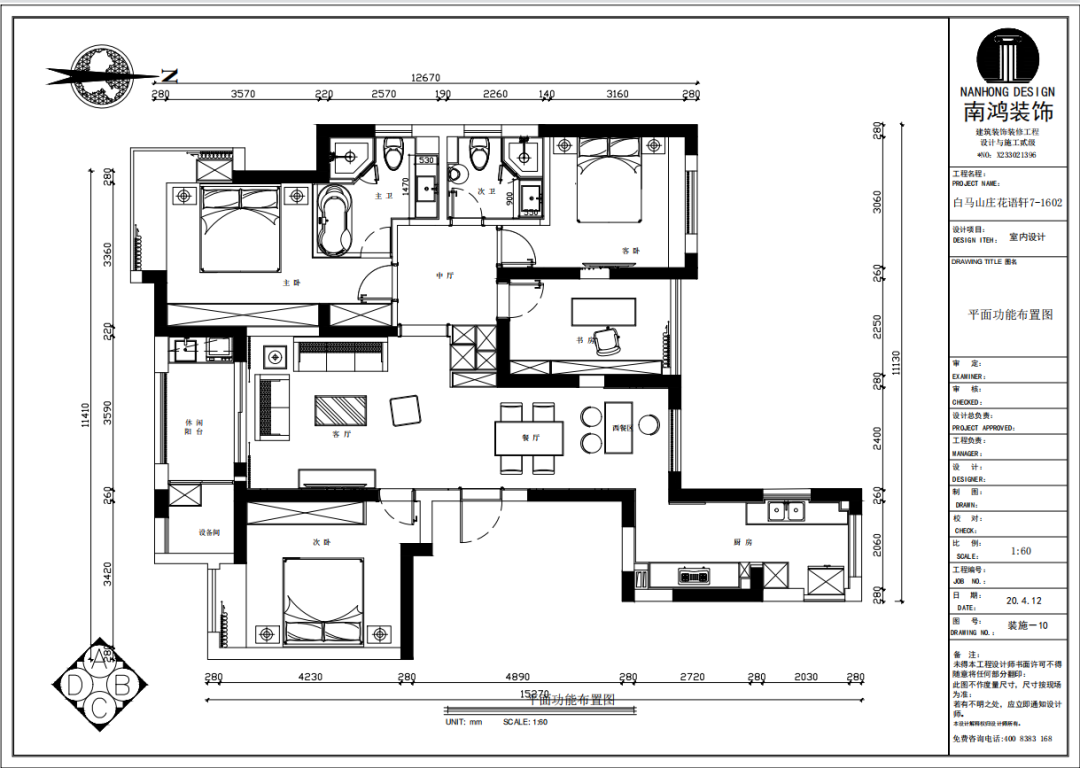
設計四部王小芬 / 白馬山莊

白馬山莊是由設計四部的王小芬老師帶來的一套現代輕奢風格的作品,在本次會議上受到了諸多評委的好評。
戶型圖一覽▼

實景欣賞▼



室內色彩以黑白灰色調為主,冷色調給人安靜的感覺,適合屋主一個人靜下心來看書、品茶,同時也放大了空間。裝飾上采用的大理石、金屬嵌條、銀鏡等元素,也有利于營造全屋的輕奢氛圍。
濱江分部王冬萍 / 雁歸里

遠洋雁歸里是我們王冬萍老師的一套現代輕奢風格的別墅作品。輕奢風是一種格外優雅的生活基調,也是居者面對喧囂世界時寧靜從容生活態度的一種外現,高貴又有質感。
效果圖一覽▼




△設計師前期所做的一些效果圖分享,一起期待最后的落地成品吧!
臨平分部朱葉琦 / 雍熙山莊

最后一套作品是由我們朱葉琦老師帶來的現代風格案例雍熙山莊。現代風格簡約時尚,美觀大氣,注重空間的布局與使用功能的結合,不刻意突出裝飾和外表,經濟又實惠,是當下最受歡迎的風格之一哦。
效果圖一覽▼


會議上,度愛度家公司的工作人員受邀來到現場為我們做了軟裝產品的知識分享。隨后,產品部、軟裝部的小伙伴也為在座的設計師們悉心補充講解了南鴻現有產品體系的相關知識,幫助設計師們更好地了解到咱們南鴻的產品優勢。




△陳總為各“設計之星”頒獎
會議的結尾,李總發表講話,著重提到在全案/整包項目,設計師一定是在整個過程中起主導作用,而設計又與產品息息相關,所以設計師們要不斷拓寬自己的知識邊界,將更多優秀產品融入到自己的設計方案中,把品質交付落到實處。

免費
免費申請戶型規劃
專屬設計師免費1對1全程服務
已經有3782人申請
24小時免費咨詢電話
400-8800-618
你家預算
108080元