
【海德公園】溫柔灰包裹的二人居,自由感與浪漫感的雙重收獲


在這個車水馬龍,欲望橫行的都市里,尋找到一座島嶼,打破一切束縛,在有限的空間里平息所有的浮華與不安...

沿著感性的肌理開始旅行,
蜿蜒之后,
是一簇溫柔的詩意。
本案是86方的小戶型項目,業主比較喜歡性冷淡風,故整體空間都用克制的灰色調,在某些墻面的設計上做圓弧造型,讓空間多了層次感和溫柔的脾性。大量的藝術涂料紋理細膩,帶來鮮活生動的視覺感受。
在戶型結構上,原本緊湊的幾個區域都打開進行統一規劃,采光和空間感均得到最大化提升。
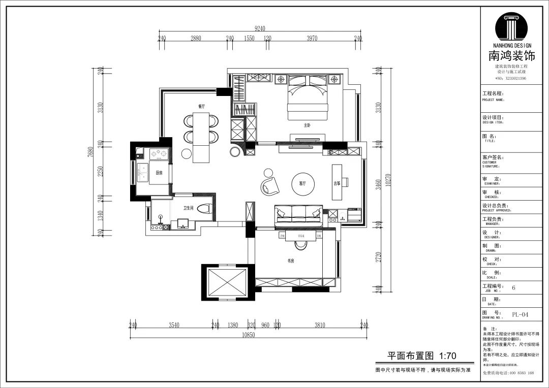
#戶型改造分析

優點:采光通風還不錯,南北通透。
缺點:雖然贈送了一個書房,有三個房間和兩個衛生間,但是每個房間空間的尺寸都比較局促,使用起來并不舒適。

對整體空間進行了梳理,重新規劃,大膽地將主臥衛生間改成了衣帽間,再利用S墻體將衣柜的收納和雙門冰箱空間規劃出來。
另外,原餐廳區域比較局促,整體動線舒適性不是很好,北面書房的空間也比較小,所以將原書房空間與餐廳打通,做成島臺和餐桌椅一體式設計。
項目信息:
地址 | 海德公園
城市 | 中國 杭州
戶型 | 兩室兩廳
面積 | 86㎡
風格 | 現代
設計施工 | 浙江南鴻裝飾
Hallway

漂亮而個性的玻璃磚被應用到了玄關區域,除了能改善采光,其本身就是一大裝飾亮點。深色的鞋柜兼備小件物品的收納功能,“纖瘦”的立式掛桿更是點滿了時髦屬性。
Living Room

客廳是一個極溫柔的灰色輕熟空間,仿佛被軟軟的云絮包裹住了,輕和,自在。頂面與陽臺門洞的弧形結構處理為理性的現代空間注入柔和的感性美。墻面使用藝術涂料,沒有過多的裝飾,視覺上放大空間,還帶著別致的藝術感。

磨砂布的深灰色沙發搭配玻璃茶幾和米白色的地毯,色彩層次分明,簡約的家具組合描繪著主人低調的生活狀態。書房門則完美隱藏在沙發背景墻中。

在電視背景的設計上主要以美學考量為重,塊面造型干凈利落,輕盈的懸浮設計釋放空間的呼吸感,一側的房門同樣是隱形門的設計處理。


設計以克制的筆觸為家營造出和諧的韻律感,客餐廳連通為寬敞的開放區域,之間是一條無視覺阻礙的直線生活動線,內外通透。
Dining Room & Kitchen


廚房與餐廳連通,餐廚區利用島臺+餐桌作為空間重心,形成了非常高效的洄游動線,客、餐、廚各區域緊密互動,兩個人可以邊做飯邊交流,小小的幸福感頓時撲面而來。

餐廳轉角的弧形區域是設計又一大亮點,讓空間多了個性元素的同時,也能將過道放大,提升居住體驗。

廚房的面積比較小,所以淺色系就是最穩妥的選擇。
Bedroom

主臥,墻面裝飾依然節制,半高的木飾面刻畫簡單的層次,空間化繁為簡的姿態強化了身心自在的感受。

考慮到主人的需求,原主衛區域變更為敞開式衣帽間,黑色衣柜樸實無華,卻最能展現純粹的魅力。
Study

隱形于木格柵中的書房門,有形與無形間的自由轉換,有效增添私密和意境。

舒然隨性的場域精神延伸至書房,續寫著空間從容的姿態。
Bathroom

衛生間以黑色的瓷磚上墻,視覺基調統一,黑白灰共同搭建起精致的沐浴情調。
免費
免費申請戶型規劃
專屬設計師免費1對1全程服務
已經有3782人申請
24小時免費咨詢電話
400-8800-618
你家預算
108080元