
侘寂、意式與復古的多重交融,這究竟是什么神仙搭配術!

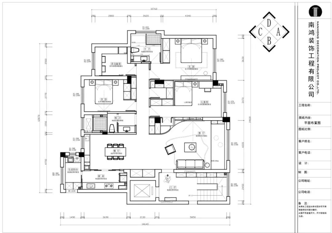
不被外界打擾的閑暇, 是求之不得的恩賜。 本案以簡潔明快的設計風格為主調,將侘寂風的自然寫意與意式風的凝練直爽相結合,藝術涂料搭配素樸的木作,傳達出生活的恬淡和放松。 總體布局方面滿足業主三口之家的基本需求,適度的個性裝飾也使這個家居空間不乏活潑的氣息,混搭的復古情調給生活在繁忙都市的人兒增添了更多的樂趣。 以簡馭繁 質樸純粹 ? 戶型設計 >>客廳 柔光淺色地磚對上墻面的微水泥材質,明凈的極簡涵義不言而喻。整體性、舒適感兩相得宜,空間呈現淡然、溫潤的宜居氛圍。 極簡的頂面幫助視覺延伸,留白是讓室內呈現高級格調的通用手法。陽臺處砌出地臺休閑區,豐富了空間的功能性,整體的軟裝則采用意式現代的家具搭配式樣,直曲相合,剛柔并濟。 藝術化作寫意之象定格于墻上,角落的綠植在視覺上形塑出和諧而美妙的交織。 在電視背景墻造型上,設計師運用弧形面結合木作,既與陽臺有了體塊上的聯動,也撐起了客廳的柔和度與美感。 >>餐廳 圓潤時尚的餐桌椅,清淺的基調,讓餐廳空間也是溫柔而放松的。臨窗設計餐邊柜和西廚區,方便主人做簡餐、烘焙。 >>廚房 考慮到日常做飯會出現的油煙問題,我們用玻璃移門隔斷餐廚,也不會影響空間整體的通透感。廚房內灰色櫥柜配白色瓷磚,做經典的深淺色搭,同時省了許多清理的麻煩。 >>臥室 室內設計是關于空間的藝術,其實也是一種時間的藝術。 臥室的復古風搭配帶來悠遠的情懷和浪漫的調性,飽滿色彩映照出時而曖昧時而強烈的神秘性與感召力,如同劇幕一般,圍繞著生活幻化出無限可能和想象。 >>兒童房 兒童房的布局在學習、休息、儲物和玩樂活動之間做了很好的平衡,一面益智樂高墻就能充分鍛煉孩子的動手能力和思維能力,未來的樂高大師說不定就要在這里誕生啦~ >>衛生間 衛浴空間內部彌漫著優雅而輕暢的氣息,白瓷色的墻、花磚地面與深色的臺盆柜、金色的鏡框相得益彰,共蘊層次。水龍頭選擇可抽拉的款式,顏值與實用兼得。 ? 項目信息 項目名稱:錦港府 設計風格:現代混搭 項目類型:三室兩廳 項目地點:中國·寧波 項目面積:150㎡ 項目服務:設計·施工·硬裝·軟裝 全案設計 設計單位:浙江南鴻裝飾 施工單位:浙江南鴻裝飾 - Thanks For Watching -
















上一篇:我家的客廳,就是要與眾不同!
下一篇:新作 | 南洋晚風熏人醉
免費
免費申請戶型規劃
專屬設計師免費1對1全程服務
已經有3782人申請
24小時免費咨詢電話
400-8800-618
你家預算
108080元